SR2E
精緻無框一字三片型
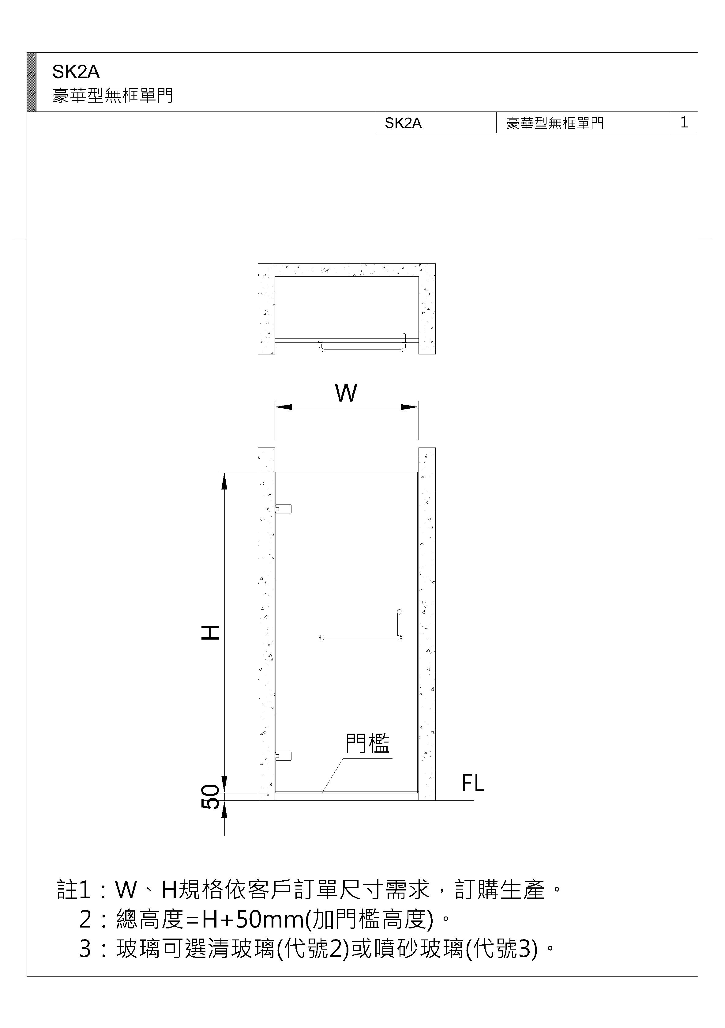
豪華型無框單門
SK2A
SPEC. 商品規格
DOWNLOAD 下載
主體
SK2A(8mm強化清玻璃) +SB5Y(人造大理石門檻)
SK3A(8mm強化噴砂強玻) +SB5Y(人造大理石門檻)
尺寸
寬度範圍 600~800mm
高度範圍 1300~2000mm(標準高度1900mm)
備註
產品報價依各訂製尺寸為主
感謝您的訂閱!
你即將取消訂閱電子報,將不再收到最新資訊,請問確定取消嗎?
期待您重新訂閱我們的電子報。
親愛的朋友您好:
HCG 對於消費者隱私權一向極為重視,絕對依照台灣「電腦處理個人資料保護法」等相關法令所規範之權利義務,並完全遵循 HCG 企業全球指導方針。 HCG
堅信其作為完全符合法律規範及保護當事人權益,在未獲得當事人同意前,絕不更改或揭示任何個人資訊。HCG 將盡最大善良管理人的注意義務,努力維繫當事人資訊之安全、完整及正確,HCG
亦將依照法令規範提供當事人對其個人資訊進行檢視、修改或刪除等相關作業,尊重當事人資訊隱密性暨保護交易安全。
此項聲明將幫助您了解,在您使用 HCG 網站所提供的各項服務時,HCG
處理您個人資料的各項原則。這份聲明文件將會隨著 HCG 網站功能的擴充,而做最適當的調整與變更,請定期查詢。
一、HCG如何取得您個人資料
當您進入HCG相關網站瀏覽產品訊息時,並不需要提供您的個人資料,但當您使用HCG網站所提供的各項服務,或是參加HCG主辦或協辦的線上活動時,HCG和相關網站或合作對象可能會要求您登錄個人資料,包括您的姓名、電子郵件信箱、生日、性別、住址、電話等等…。除了上述的個人資訊之外,HCG會保留您在上網瀏覽或查詢時,由伺服器自行產生的相關記錄,包括連線設備的IP位址、使用時間、使用的瀏覽器、瀏覽及點選資料記錄等等…。HCG會對個別連線者的瀏覽器予以標示,歸納您瀏覽器在內部所瀏覽的網頁,除非您願意告知您的個人資料,否則HCG不會,也無法利用此項記錄。
除了使用管理HCG所需的「個人資訊」外,HCG也會收集一些HCG所使用或與協力廠商共用的匿名資訊。這些資訊無法用來識別您的身份,但是對於提昇HCG的服務品質有很大的助益。這些資訊是透過「流量資料」來收集,需要使用「Cookie」、「IP 位址」或其他數字碼等資料來識別電腦。凡未經您主動註冊所產生的資料,例如您機器的IP位址、使用時間、使用的瀏覽器、瀏覽及點選紀錄等資料,HCG僅對全體行為作總和性的分析,並不會對針對使用者個人進行個別分析。
另外透過HCG網站刊登廣告之廠商,或與HCG連結的網站,也可能取得您個人的資料。對於您主動提供的個人資訊,這些策略聯盟伙伴或連結網站,都有各別之隱私權保障聲明文件,其資料處理措施將不在HCG隱私權保障聲明文件之內,HCG網站不負責任何相關之連帶責任。
二、HCG與第三者共用您個人資料
HCG及其相關合作的協力廠商會使用您的「個人資訊」來運作站台和提供您各項服務,並根據您的個人資料通知您各項最新的功能與服務,以及HCG各類產品的訊息。基於保護使用者的立場,HCG會謹慎的挑選來自其他公司的產品或服務資訊傳送給您,通常是有關於站台本身相關的服務,但此項作業並非必要 (次要用途)。
HCG將保證使用者有相當權利可控制其所提供之資料,除非經由您的同意,或HCG基於善意以及依應法律所要求,否則HCG不會將您的任何個人識別資料任意提供給他人使用。HCG網站也將保護使用者資料以及累積而成之資料庫,避免未經授權之入侵及洩露等危險。對於使用者「個人資訊」以及資料庫,HCG也將設立內部管理組織及內部控制規定來加以保護。
HCG不會任意出售、交換或出租您的個人資訊給其他團體或個人。為了提供完整的購物及送貨服務,HCG可能需要將您的個人資訊對第三者 (如貨運公司、銀行等等) 揭露。HCG將會要求相關合作廠商妥善使用及管理您的資料。依照保密協議,HCG可將您資料與第三人資料比較對照。為了向未來的合作伙伴、廣告商及其他第三方介紹HCG的服務及其他的合法目的,HCG得揭露統計資料。
在特殊情形下,您若違反HCG服務條款或損害或妨礙HCG權益,HCG網站的使用者因前述行為可能受害之任何人(不論是無意還是故意的),只要HCG有理由相信揭露此資料是做為辨識、連絡或對該人採取法律行動所必要,HCG得以揭露用戶資料。基於善意相信揭露為法律需要,或為維護和改進產品、服務而用於管理或其他目的時,HCG亦可揭露或讀取用戶資料。此外,司法單位因公眾安全,要求HCG公開特定個人資料時,HCG將視司法單位合法正式的程序,以及對HCG保障使用者安全考量下做可能必要的配合。
三、HCG的Cookies運用政策
Cookie是可以讓網頁伺服器辨識使用者資料的功能,並留存記錄之用的資訊集合。目前大部分的網站使用 Cookie 來為他的客戶提供各種有用的功能。不過 Cookie 只識別您的電腦,不會識別您的身份。大部份的瀏覽器都預設接受Cookie;但是,您也可以選擇拒絕接受 Cookie。 您可以在Netscape的「功能設定」的「進階」或是 IE的「Internet選項」的「安全性」中選擇修改瀏覽器對Cookies的接受程度,包括接受所有cookies、設定cookies時得到通知、拒絕所有Cookies等三種。在此建議您:當您進行線上購物或使用付費服務時,請打開Cookies以完成購物流程。
Cookies在使用者讀存 HCG網站時被存入瀏覽器,用於確定重複使用的程度和比較註冊使用者以及非註冊使用者的使用次數,Cookies協助HCG網站統計瀏覽人數及分析瀏覽模式,以了解網頁瀏覽的情況,做為HCG改善服務的參考,改善使用者在HCG網站中的瀏覽經驗。
四、HCG提供使用者的選擇聲明
請注意,您透過點選「我同意」或「確認送出」來送出資訊。如果您選按或勾選「我同意」之選項,或是在填寫資訊後按「確認送出」鍵將資料送出,您將被視為了解並同意此文件的所有內容。
五、HCG網站關於兒童隱私權的說明
HCG網站對兒童「個人資訊」的保障是非常重視的。特別針對兒童及未滿十四歲的青少年,HCG希望此對象的家長能一起來上HCG網站以確保兒童及青少年的權益。 在兒童隱私權這個領域,有越來越多的標準被制定出來。這些標準將影響HCG在未來如何處理兒童的「個人資訊」,HCG正密切注意這些變化並且重新設計相關更符合更具保障兒童隱私權之系統讓兒童隱私權充分受到安全保障。
六、HCG隱私權保障聲明文件諮詢
若您對自己在HCG網站中的隱私權有任何問題,或任何時候如果您認為HCG沒有遵守這些原則時,歡迎您提供寶貴意見給我們,請利用電子郵件通知HCG,帳號是hcgweb@hcgnet.com.tw,HCG將會盡一切努力在合理適當的範圍內儘快改善您所提出的各項建議,以便提供您更完善的服務。
請先登入會員,才可進行後續相關動作。

